Plastová okna a dveře jsou vyráběna z PVC profilů němec-kého výrobce firmy ALUPLAST, odolného vůči povětrnostním vlivům, splňující nejpřísnější evropské normy pro tepelnou a zvukovou izolaci. Standardně jsou provedena v bílé barvě s možností širokého výběrů barevné škály. Veškerá okna jsou dodávána s 3-tří cm parapetním profilem. V rámu a samot-ných oknech je zabudována ocelová výztuž ve tvaru U hr. 2mm, za příplatek lze dodat výztuž ve tvaru O.
K zasklení se používají vysoce kvalitní skla německé firmy GUARDIAN FLACHGLAS. Nízko emisní dvojskla vyplněné argonem se vyznačují vylepšenou tepelnou izolací U=1,0 W/m²K bez dodatečného příplatku ( v nabídkách jiných firem se standardně objevuji skla s tep. Izolací U=1,1 W/m²K a více ). Novinkou je „teplý“ rámek, který perfektně doplní termoinstalační vlastnosti okna. Na kvalitě oken a dveří se podílí použití bezpečnostního obvodového kování rakouské firmy MACO, které je vybaveno mikroventilací 13mm, bezpeč-nostní pojistkou proti vysazení a pojistkou proti chybné manipulaci s klikou. Na přání lze dodat i kování proti vloupání.
Okna dodáváme v základním provedení s hliníkovou klikou v barvě okna a s šedým případně černým ekologickým těsněním. Všechny tyto komponenty spolu vytváří nejmodernější techniku s nejvyšším komfortem využití.
Na výrobu oken a dveří z hliníku se používá profil jednoho z předních výrobců okenních a dveřních systémů firmy METALPLAST. Okna v systému Softline, vyrobené z borovicového dřeva nebo dřeva meranti, se vyznačují moderním a estetickým provedením. To má vliv především na pěkný tvar zaobleného profilu, díky kterému nabývá aerodynamického tvaru s hladkým a lesklým povrchem.
Sortiment
Plastová okna
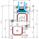
| IDEAL 2000 (3 komorový systém) |
- 15%-ní sklon vnější strany dokonale odvádí vodu.
- Skryté podsklení těsnění.
- Vícekomorová stavba pro optimální tepelné izolační vlastnosti.
- Okna jsou vybavené dvojitým těsněním.
- Kombinovaný tvar pro bezpečný odvod vody.
|
  |
| IDEAL 2000 - IGLO (4 komorový systém) |
- Možnost použití širokého rozsahu skleněných výplní o rozměrech do 35mm.
- Estetické a neviditelné těsnění skla.
- Systém IGLO je moderním a novým řešením, při konstruování kde byl mimořádný důraz kladený na stylovost a tepelnou izolační schopnost profilu.
- Čtyřkomorová stavba profilu umožňuje dosáhnout zvýšené parametry tepelné izolační schopnosti.
|
  |
| IDEAL 4000 - IGLO (5 komorový systém) |
- Kombinovaný tvar pro bezpečný odvod vody a montáž.
- Pětikomorový systém s konstrukcí o hloubce 70 mm vykazuje výborné hodnoty tepelné a zvukové izolace.
- Hloubka uložení kovací drážky zaručuje optimální bezpečnost.
- Specifický tvar a osazení těsnění EPDM v speciálních drážkách zaručuje optimální izolaci a dlouhou životnost.
|
  |
| IDEAL 4000 - Round Line (5 komorový systém) |
- Optimální izolace tepla i akustiky.
- Profil, je odpovědí klientům cenících si vzhled i estetiku oken.
|
  |
Dřevěná okna
| SOFTLINE SYSTÉM Vylepšený standard skla s tepelnou propustností U = 1,0 W/m2K |
Okna vyrobená z pečlivě vybraného meranti a borového dřeva v systému SOFTLINE charakterizuje nový, estetický vzhled. Dokonalá impregnace je chrání před plísní a houbami.
- Dokonalá kvalita a odolnost proti vypáčení oken zhotovených systémem Softline zajišťuje celistvé dřevo lepené ve třech vrstvách a vysušené na příslušnou hodnotu
- Životnost dřevo-výrobků prodlužuje impregnace a ošetření základním nátěrem
- Dřevo-výrobky jsou dostupné v různobarevném provedení (celá škála barev palety RAL) nebo natřeny bezbarvým lakem s viditelnou strukturou dřeva
- Všechny nátěry jsou ekologické a neškodí životnímu prostředí
- Prahy rámů a spodní okraje křídel jsou vybaveny hliníkovými okapy, jejichž obrysová čára ladí s jemnými obrysy celku
|
  |
Hliníková okna
| MB-45 Vylepšený standard skla s tepelnou propustností U = 1,0 W/m2K |
MB-45 je jednokomorový moderní systém hliníkových oken a dveří, vhodné pro různé typy stěn.
Okna a dveře – posuvné, vahadlové, automatické, otvírání vitrín, bankovní pokladny atd.
- Jejich základem je trvalost, různorodost zabudování, bohatá škála barev
- Hliníkové okna a dveře umožňují zákazníkovi popustit uzdu architektonické fantazii
|
  |
| MB-60 Vylepšený standard skla s tepelnou propustností U = 1,0 W/m2K |
MB-60 je tříkomorový systém hliníkových oken a dveří, vhodný pro různé typy stěn.
- Tvar dovoluje získat tenkou a trvanlivou konstrukci oken a dveří
- Zákazníkovi umožňuje širokou paletu barev (180 odstínů RAL)
- Specifikem tohoto profilu je nízká hodnota součinitele průniku tepla U, díky použití speciálních termických vložek
- Hliníkové okna a dveře umožňují zákazníkovi popustit uzdu architektonické fantazii
|
  |
Dveřní systémy
Parapety
Interiérové - PVC
| Plné univerzální z PVC |
- Plné univerzální parapety ze zpevněného PVC.
- Jejich výhodou je použití i v exteriéru.
- Vyrábí se jen v bílém provedení.
- Šířka od 100 do 350 mm.
- Délka 600 mm.
|
 |
| Komorové PVC - fóliované |
- Vnitřní komorové parapety se vyrábí v odstínech bílá, mramor, zlatý dub, jabloň, mahagon, hruška.
- Šířka od 100 do 580 mm.
- Délka 600 mm.
|
 |
Exteriérové - hliníkové
| |
- Vyráběné z eloxovaného hliníku tloušťky 1,2 mm.
- Dodáváme v barvě bílé a bronzové.
- Šířka od 150 do 350 mm.
- Délka 600 mm.
|
 |