
ROLOVACÍ VRATA
| Navíjecí schránka: | Je vyrobena válcováním z hliníkového plechu tl. 1 mm. Okraje schránky jsou zapertlované. Povrch schránky je z venkovní strany lakován práškovou barvou a opatřen ochranou odstranitelnou folií. Přední revizní díl schránky je zkosen v úhlu 45°. Schránka je na stranách uzavřena hliníkovými odlévanými bočnícemi v barvě schránky. Schránka obsahuje navíjecí hřídel, elektrický pohon 230 V s nouzovým ovládáním - NHK, PVC redukce, ložiska a ocelové pérové závěsy. Velikosti schránek dle výrobní řady. Velikosti schránek: 300 Barvy schránek: bílá, hnědá SF, šedá, na přání dle RAL |
| Elektrický pohon: | Elektrický trubkový pohon, zn. Becker, napětí 230 V. Nouzové ovládání pohonu klikou přímo u boxu. |
| Vodící lišty: | Hliníkový extrudovaný porfil, lakovaný práškovou barvou dle barev schránek, s polyetylenovým těsnením s vysokou stabilitou. |
| Roletový pancíř: | Vyroben z hliníkových válcovaných profilů vyplněných polyuretanem bez FCKW s označením T 77. Lamely pancíře jsou neperforované. Barevné provedení standard dle vzorníku. Pancíř je aretován bočními aretacemi, aretace jsou prinýtované. |
| Koncová lamela: | Typ SL RT, extrudovaný hliníkový profil, s PVC těsnením, povrchová úprava práškovou barvou v odstínech jako schránka. Do koncové lamely je možno vložit elektrickou kontaktní lištu. |
| Ovládání: | Varianty viz, príslušenství |
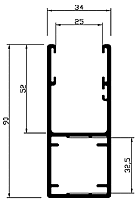
![]() | ![]() | Rozměry schránek v mm |
|---|---|---|
![]() |
| Způsoby montáže rolovacích vrat | |||
|---|---|---|---|
| před otvor | do otvoru | do otvoru | za otvor |
![]() |
![]() |
![]() |
![]() |
| vodící lišta RTF | lamela T 77 | koncová lamela SL RT | |
|---|---|---|---|
![]() |
![]() |
![]() |
![]() |
| ocelová navíjecí hřídel OCTO 70 | guma do koncové lamely SL RT | Al bočnice pro box 300mm |
|---|---|---|
![]() |
![]() |
![]() |
| tabulka návinu lamel v závislosti na hřídeli v cm |
spodní kontaktní lišta SKL (za příplatek) |
|---|---|
![]() |
![]() |
Přijímají se pouze písemné objednávky doručené poštou, faxem nebo e-mailem.
Doporučujeme používat naše standardní objednací formuláre.
U telefonických objednávek neručíme za správnost a nebude uznána případná reklamace.

Objednací výška je celková výška elementu vč. boxu.
Objednací šířka je celková šířka elementu vč. vodících lišt.
